Imposta i filtri di ricerca
Menù disattivato
Provincia di Modena
Vedi elenco zone disponibiliVedi elenco zone disponibili
-
-
Affina la ricerca con ulteriori parametri altri parametri di ricerca
solo liberi o in pronta consegna
CERCA

Modena (Buon Pastore)

Appartamento

Foto Formato Reale Stampa scheda immobile
APP.TO DI 104 MQ. IN PALAZZINA NUOVA ZONA B.PASTORE
Stampa scheda immobile
MO873-A. Nostra esclusiva. Via Cellini, zona Buon Pastore, in palazzina di nuova costruzione (Classe Energetica "A4") di sole 5 unità vendesi app.to "A" ubicato al piano primo con ascensore di 104 mq.
Caratteristica peculiare dell’intervento è l’adozione di avanzate tecnologie impiantistiche d’avanguardia volte al massimo contenimento del consumo energetico nel pieno rispetto dell’ambiente, infatti tutte le unità immobiliari saranno edificate in classe “A4” (secondo la delibera della Regione Emilia Romagna dgr. 20 luglio 2015, n. 967).
Il capitolato prevede finiture di pregio tutte personalizzabili, pavimenti in ceramica grandi formati e parquet, rubinetterie e sanitari di design, riscaldamento autonomo a pavimento in pompa di calore, aria condizionata, tapparelle motorizzate, serramenti in alluminio, impianto per il ricircolo dell'aria meccanizzato, pannelli fotovoltaici, impianto di domotica Bticino My-Home, predisposizione per antifurto, zanzariere e addolcitore acque.
App.to così disposto: ingresso, soggiorno con cucina a vista e piccola loggia coperta, ripostiglio, dis. notte, due camere da letto matrimoniali e due bagni finestrati.
Possibilità di usufruire delle detrazioni derivanti dal Sisma Bonus acquisti.
Possibilità di personalizzazione degli spazi e delle finiture interne.
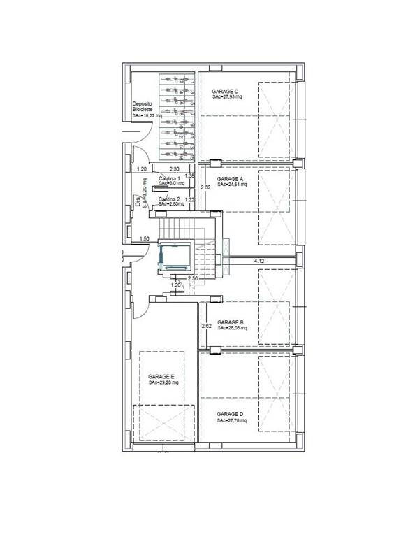
Possibilità di scelta tra diversi garage, cantine e posti auto a parte nel prezzo.
Prezzo: € 388.500
Consegna dicembre 2026.
Per informazioni e visite: 340-7710085 dott. Corica Giuseppe, 348-8701469 Geom. Maurizio Corica, 335-6444800 dott. Gollini Enrico, 335-6880908 geom. Fella Cristiano.
In alternativa ulteriori info sul ns sito GRUPPOMORE.IT digitando CODICE DI RIFERIMENTO o inviaci una mail gestionecantieri-gruppomore@cataimm.it

Caratteristiche

Codice
MO873-A
Prezzo
€ 388.500
Spese cond.li
€ 800 / anno
Mq
104
Classe
A4
Locali
5
Camere
2
Bagni
2
Piano
Primo
Totale piani
4
Stato Immobile
In Costruzione
Grado
Signorile
Posizione
Centro
Panorama
Vista Aperta
Orientamento
Nord Ovest Sud Est
Lati Liberi
3
Giardino
Comune
Arredi
Non Arredato
Tipo Soggiorno
Soggiorno
Tipo Cucina
A Vista
Riscaldamento
Autonomo
Tipo Riscaldam.
Pompa di Calore
Tipo Impianto
Pavimento
Fonte Energetica
Fotovoltaico
Acqua Calda
Autonoma
Raffrescamento
Split
Infissi
Alluminio Doppio Vetro
Serramenti
Nuovo
Persiana
Tapparella Metallo
Pavim. Giorno
Parquet
Pavim. Notte
Parquet
Pavim. Cucina
Ceramica
Pavim. Bagno
Ceramica
Accesso Disabili
Nessuna Barriera
Accesso interno disabili
Pieno accesso
Isolamento
Presente
Isolamento termico
Cappotto esterno
Isolamento acustico
Isolamento completo
Accessori
Antifurto, Aria Condizionata, Ascensore, Bagno Handicap, Cancello Elettrico, Doppi Vetri, Fibra Ottica, Impianto Fotovoltaico, Passaggio Automobilistico, Passaggio Pedonale, Porta Blindata, Ripostiglio, Tapparelle Elettriche, Tavolini Esterni, Video Citofono

Planimetrie

Per informazioni
Bagatti Immobiliare
Bagatti Immobiliare
Via Mario Vellani Marchi, 70 - Modena (MO)
Tel. 059 223065
Tel. 059 241402
Invia Email
Codice:
Nominativo: *
Telefono: *
Email: *
Dettagli richiesta: *
Autorizzo il trattamento dei miei dati personali in base Regolamento UE n. 679/2016- PRIVACY POLICY
Invia
Condividi
Cookie preference