Imposta i filtri di ricerca
Menù disattivato
Provincia di Modena
Vedi elenco zone disponibiliVedi elenco zone disponibili
-
-
Affina la ricerca con ulteriori parametri altri parametri di ricerca
solo liberi o in pronta consegna
CERCA

Modena (Centro storico) ZONA PIAZZA GRANDE

Appartamento

Foto Formato Reale Stampa scheda immobile
GRAZIOSA MANSARDA CENTRO SOTORICO
Stampa scheda immobile
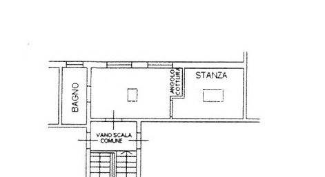
Modena, Centro Storico, a pochi passi da Piazza Grande vendesi graziosa mansarda sita al piano terzo composta da: soggiorno con angolo cottura, stanza e un bagno.
Classe energetica in fase di valutazione.
Richiesta €. 140.000

Caratteristiche

Codice
VB0658
Prezzo
€ 140.000
Spese cond.li
€ 400 / anno
Mq
25
Classe
In fase di valutazione
Locali
2
Bagni
1
Piano
Terzo
Totale piani
3
Stato Immobile
Buono
Grado
Signorile
Posizione
Centro Storico
Orientamento
Sud
Lati Liberi
1
Tipo Soggiorno
Salone
Tipo Cucina
Angolo Cottura
Riscaldamento
Autonomo
Tipo Riscaldam.
Caldaia
Tipo Impianto
Radiatori
Fonte Energetica
Metano
Acqua Calda
Autonoma
Raffrescamento
Split
Infissi
Legno
Serramenti
Buono
Pavim. Giorno
Ceramica
Pavim. Notte
Ceramica
Pavim. Cucina
Ceramica
Pavim. Bagno
Ceramica
Accessori
Aria Condizionata

Posizione su mappa

ZONA PIAZZA GRANDE , Modena (MO)
Per informazioni
Bagatti Immobiliare
Bagatti Immobiliare
Via Mario Vellani Marchi, 70 - Modena (MO)
Tel. 059 223065
Tel. 059 241402
Invia Email
Codice:
Nominativo: *
Telefono: *
Email: *
Dettagli richiesta: *
Autorizzo il trattamento dei miei dati personali in base Regolamento UE n. 679/2016- PRIVACY POLICY
Invia
Condividi
Cookie preference